Projet en cours
Sur le terrain limitrophe de celui objet de premier projet la société SAROUTY lance son deuxième projet le IQ 2.
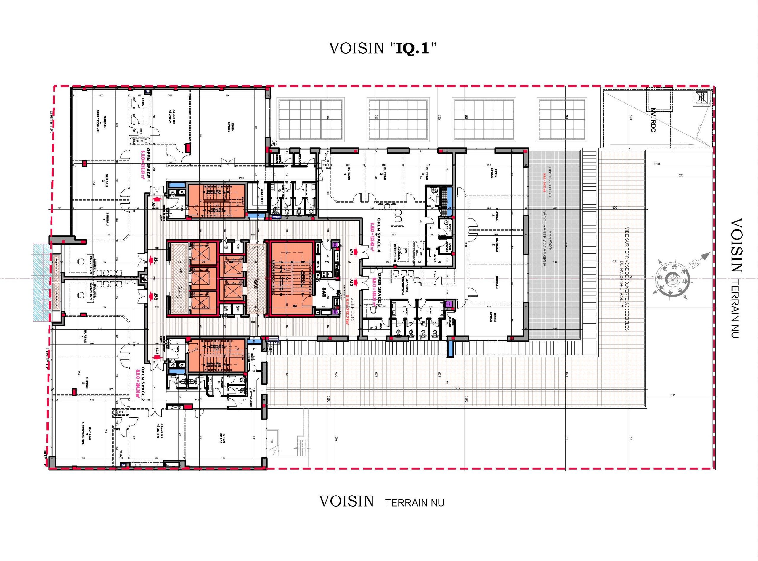
L’IQ2 est un bloc de bureaux de même standing que l’IQ1 qui se compose de 42 bureaux, une salle de congrès au RDC et un parking au sous-sol.
Les bureaux de l’IQ2 sont destinés à la location en plus de deux bureaux du projet IQ1 (le A1-04 et A2-04)
PROGRAMME DU PROJET
IQ 2 est un projet moderne et fonctionnel, pensé pour répondre aux besoins des entreprises et offrir
des espaces de travail flexibles et adaptés.
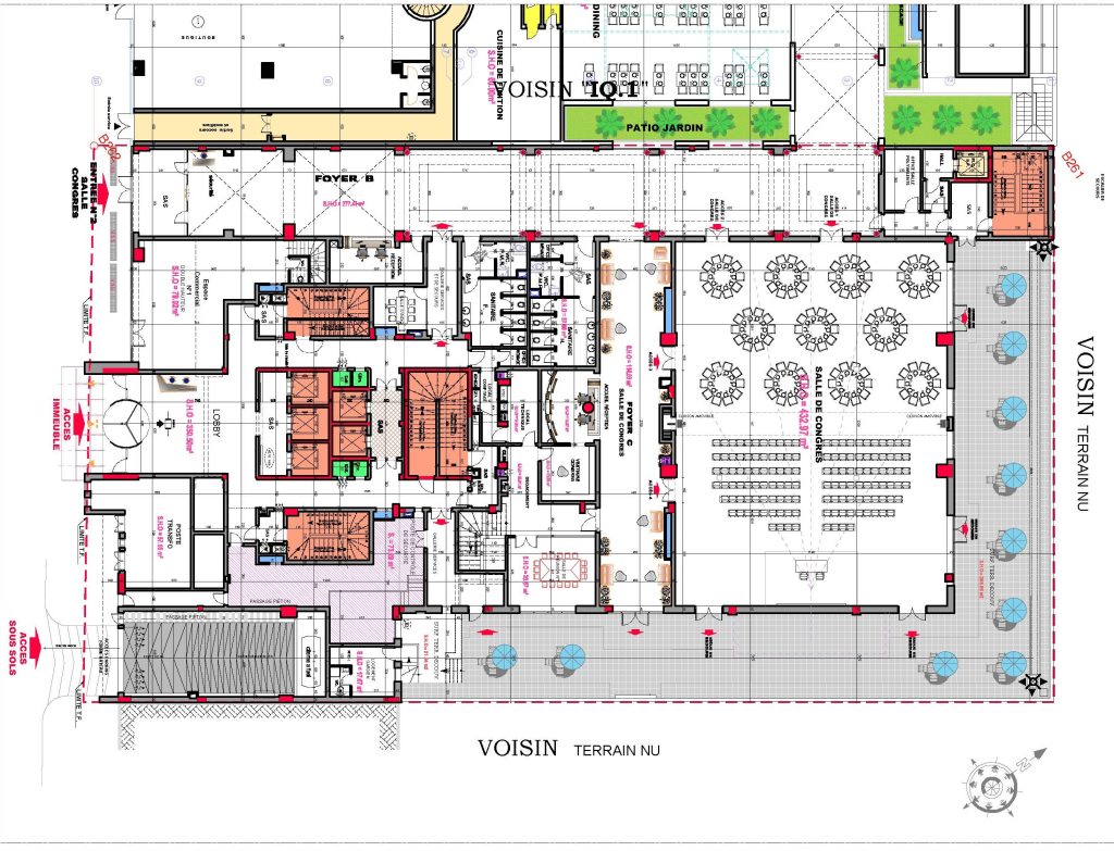
Le projet se compose de deux sous-sols offrant 110 places de parking, d’un rez-de-chaussée accueillant un hall de réception, un espace commercial, une salle polyvalente d’environ 1000 m², ainsi que plusieurs locaux techniques et services.
La mezzanine comprend :
-cinq salles de réunion
-deux open spaces
-un espace commercial.
Les étages abritent au total 40 open spaces de différentes superficies, certains bénéficiant de vastes terrasses découvertes.
Le dernier niveau intègre également une terrasse fumeur aménagée.
L’immeuble est équipé de :
-Cinq ascenseurs
-Trois cages d’escaliers
Elle répond à toutes les normes de sécurité propres aux Immeubles de Grande Hauteur (IGH).
Emplacement idéale
IQ 2 bénéficie d’un emplacement tout aussi privilégié, situé juste à côté de l’IQ 1. Cette proximité renforce la cohérence du pôle d’affaires développé par Sarouty aux Berges du Lac, offrant une continuité stratégique en matière d’accessibilité, de services et de dynamisme économique. Ensemble, les deux projets forment un ensemble harmonieux au cœur d’une zone en pleine expansion.